- Entdecke die Möglichkeiten !
In zentraler, absolut ruhiger Lage von Kaufering, fußläufig zum Bahnhof
(ideal für Pendler nach München),
präsentiert sich dieses einzigartige Immobilienangebot – ideal für
Mehrgenerationenwohnen oder Wohnen & Arbeiten. Auf einem ca. 639 m²
großen Grundstück befinden sich zwei eigenständige Wohnhäuser: ein
modernes, hochwertig ausgestattetes Einfamilienhaus (Baujahr 2008) in Holzmassivbauweise sowie ein renovierungsbedürftiges
Altbauhaus (Baujahr 1954) mit Ölofenheizung (Anschluss der Wärmepumpe
vom neuen Haus für Wasser und Heizung sind bereits vorhanden). Während das moderne Haus
sofort zu beziehen wäre, müsste das alte Haus von Grund auf saniert
werden - oder aber der Planierraupe zum Opfer fallen.
Modernes Einfamilienhaus (Baujahr
2008)
Das
Hauptgebäude überzeugt durch seine nachhaltige Holzmassivbauweise und
eine exklusive, gehobene Ausstattung mit vielen Einbauschränken und
einem durchdachtem Licht und Beschattungskonzept. Mit
einer Wohnfläche von ca. 158 m² bietet es großzügige, lichtdurchflutete
Räume und modernen Wohnkomfort (Eichenholzparkett, Steinfliesen,
elektrische Jalousien, Faltanlage zur Terrasse, Swarowski Kristalle im
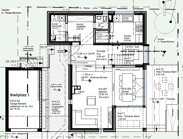
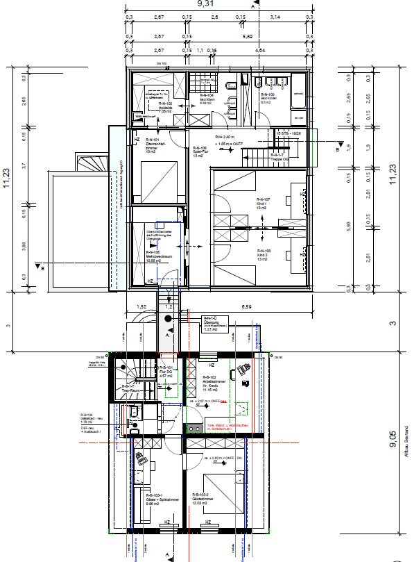
Bad. Im Erdgeschoss befinden sich die
elegante Miele-Einbauküche, eine Speisekammer, der Hauswirtschaftsraum
sowie der Ess- und Wohnbereich mit seinem gemütlichen Kaminofen. Im
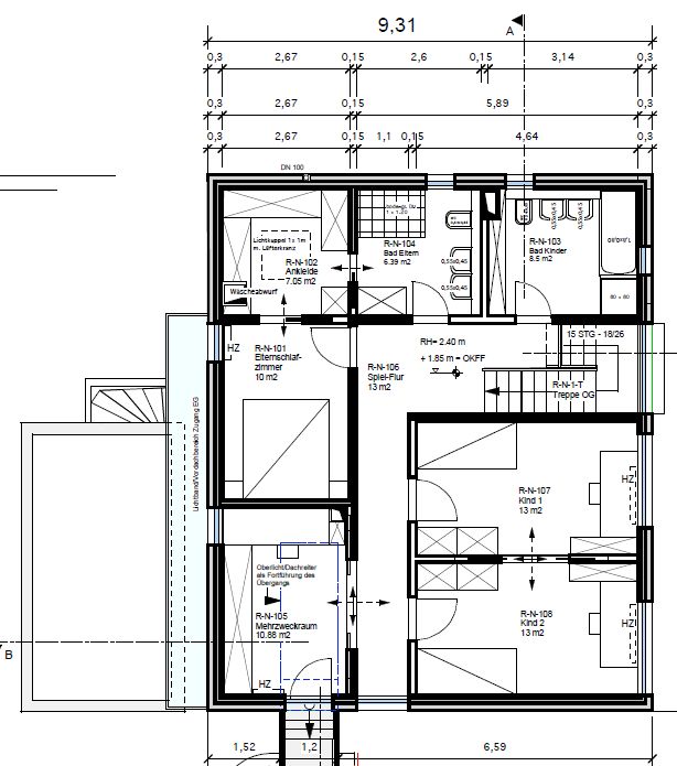
Obergeschoss gibt es den Elternbereich mit eigenem Bad und
Ankleidezimmer sowie ein Kinderbad, 2 Kinderzimmer und ein
Arbeitszimmer. Die Beheizung erfolgt über eine effiziente Grundwasserwärmepumpe,
was sowohl ökologisch als auch wirtschaftlich vorteilhaft ist. Ein
Keller ist nicht vorhanden, was jedoch durch die durchdachte
Raumaufteilung und ausreichend Stauraum kompensiert wird.
Charmantes Altbauhaus (Baujahr 1954)
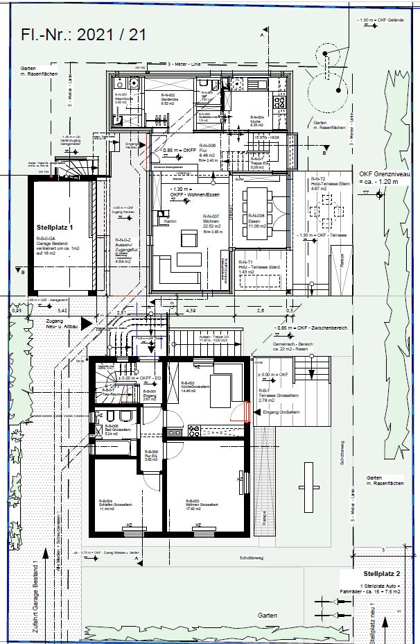
Das zweite Gebäude auf dem
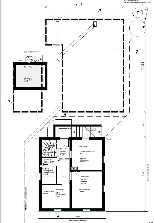
Grundstück ist ein sanierungsbedürftiges Haus mit einer Ölofenheizung.
Es bietet eine solide Bausubstanz, ca. 97m² Wohnfläche und ist
unterkellert. Mit handwerklichem Geschick und Investitionen kann dieses
Haus in neuem Glanz erstrahlen und vielfältig genutzt werden – sei es
als separate Wohneinheit für Familienangehörige, als Büro oder zur
Vermietung. Es besteht sogar die Möglichkeit beide Häuser mit einem
Übergang vom Obergeschoss zu verbinden. Die Anschlüsse der Wärmepumpe
vom neuen Haus sind bereits an das Alte Haus verlegt sodass eine
Mitversorgung unkompliziert wäre. Das Grundstück verfügt über eine
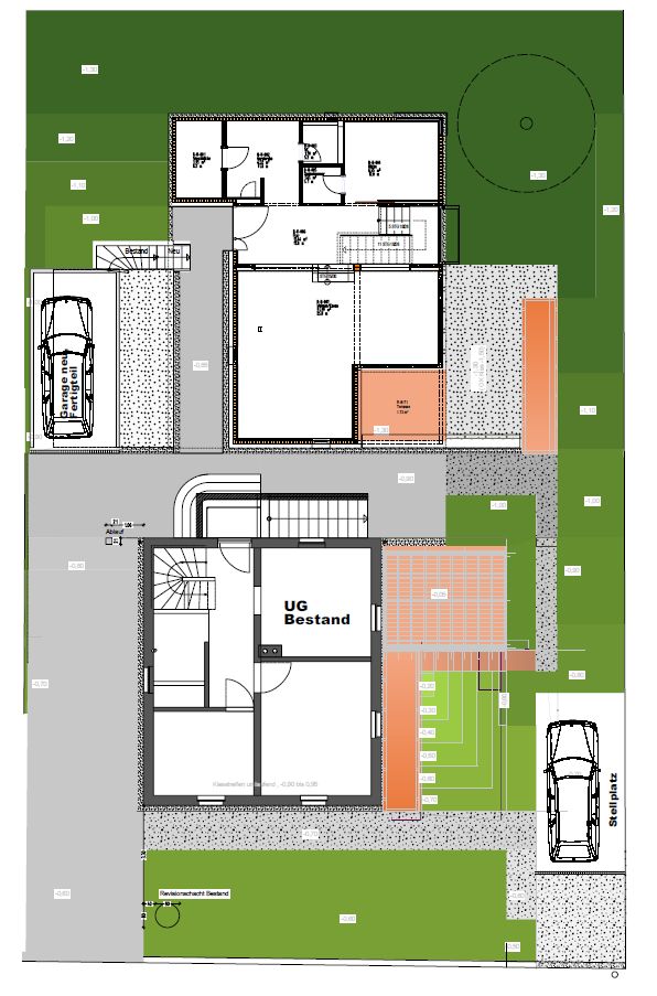
unterkellerte Garage sowie drei zusätzliche PKW-Stellplätze, die ausreichend Platz für
Fahrzeuge bieten. Die Außenanlagen bieten zudem Gestaltungsspielraum für
Gartenliebhaber (großer Gartenschuppen vorhanden) oder zusätzliche Nutzflächen.
Kaufpreis € 1.100.000,--
zzgl. Käuferprovision 3,57 % inkl. MwSt.
Widerrufsbelehrung für
Verbraucher als Word-Dokument

|
|
|
| |
Energieausweis neues Gebäude - Ausweistyp: Energiebedarfsausweis
|
| Befeuerungsart: |
Strom / Wärmepumpe |
|
| Baujahr Anlagentechnik: |
2007 |
|
| Energieeffizienzklasse: |
A |
|
|
| Warmwasser enthalten: |
ja |
| Bedarfsausweis: |
Endenergiebedarf: 38,77 kWh/(m²a) |
|
| |

Erdgeschoss - neues Gebäude |
|
|
 |
|
Obergeschoss - neues Gebäude |
|
|

Erdgeschoss - beide Gebäude
|
| |
|
| Obergeschoss -
beide Gebäude |
| |
 |
| Untergeschoss
- beide Gebäude |
| |
 |
| Außenanlagen -
beide Gebäude |
| |
 |
 |
| |
|
Anfrage per Telefon: 08191-42
686 oder per e-mail |
 |
|
| |
|
|
|
|
 |
zurück zu allen
Hausangeboten |